• Lady MacDonald Inn

  • Lady MacDonald Inn

  • Lady MacDonald Inn

  • Lady MacDonald Inn

It starts with an idea

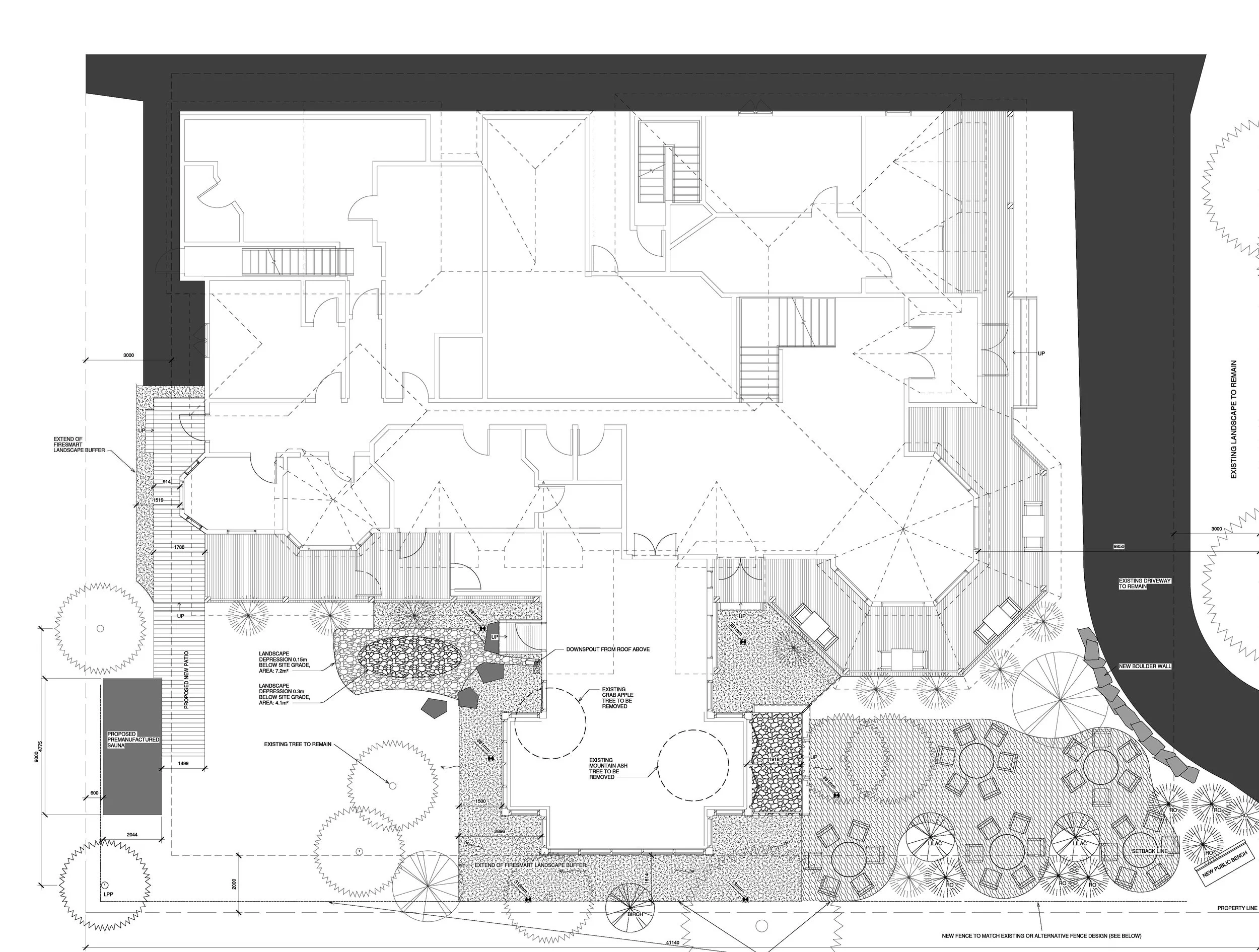
The Lady MacDonald Inn is a small, family-owned country inn in Canmore, which has recently changed ownership. During the sale process we assessed the building to highlight architectural opportunities as part of a small-scale master plan. During this process we were able to come up with simple improvements to the existing rooms to remediate some of the access issues as well as added amenities, such as a dining hall addition in the form of a traditional conservatory. The architecture focuses on being complimentary to the traditional inn and allowing the space to be flooded with natural light.

During the pre-construction phase we were able to maximize construction value and lend cost certainty to a highly complex building. Construction was completed in 2025.

Location
Canmore, AB

Project Scope
interior; architecture; structural; hospitality

Client
Lady MacDonald Inn

Year
2025

Exterior / Hot Tub

Project details here. Talk about the scope, client expectations, end result. Brief descriptions.


Conservatory

description of interior works, touch on inspirations, palletes, ideas

Room 1

description of interior works, touch on inspirations, palletes, ideas


Next
Next

Project Two